
MAIN PERIPHERAL STRUCTURE
Main frame (hot-dip galvanized square tube, thickness 2-3mm) Shell (aluminum alloy single plate, thickness 2mm)
Shell surface treatment (metal fluorocarbon paint baking) Thermal insulation waterproof layer (polyurethane foam insulation layer 80-100mm)
Glass curtain wall (6+16A+6 hollow tempered glass, European grey) Entry door (custom door) Entry lock (hotel outdoor waterproof smart door lock)
Electrical equipment room (air conditioner / water heater)
Equipment room (aluminum alloy custom door)
Peripheral light strip (surrounding ambient light strip)
Top light strip (surrounding ambient light strip)
Eco-friendly integrated ceiling and walls with highend finishes, plastic wood flooring, privacy glass bathroom door.
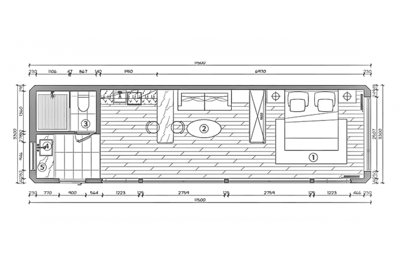
EGC-A70 STRUCTURE PLAN
Customizable color options Energy-efficient illumination Seamless integration with smart home systems
Efficient water drainage Adds architectural elegance Increases interior ceiling height for spaciousness
Optimized space utilization Modern, cozy furnishings Flexible seating arrangements
Specially designed for skyscrapers with a lifespan of up to 30 years Optimized for
High-Impact, Long-Term Use Integrated smart blinds for adjustable shading Keyless entry convenience, in others.
TECHNOLOGY
Smart Control System. Card insertion power activation / card removal power cutoff panel.
This Integrated control for lighting and curtainsis the heading.
Smart voice control. Intelligent curtain control.
OPTIONAL FEATURES
Electric pipe heating, mini induction cooker with range hood, mini fridge, custom storage cabinets, entrance staircase, capsule maintenance plans and protection insurance.



